Trilocale in vendita

Cassino, Piazza Pier Carlo Restagno - Cassino Centro
€ 129.000
3 locali 3 locali
123 Mq 123 Mq
2 bagni 2 bagni

Trilocale in vendita

Cassino, Piazza Pier Carlo Restagno - Cassino Centro

Descrizione annuncio

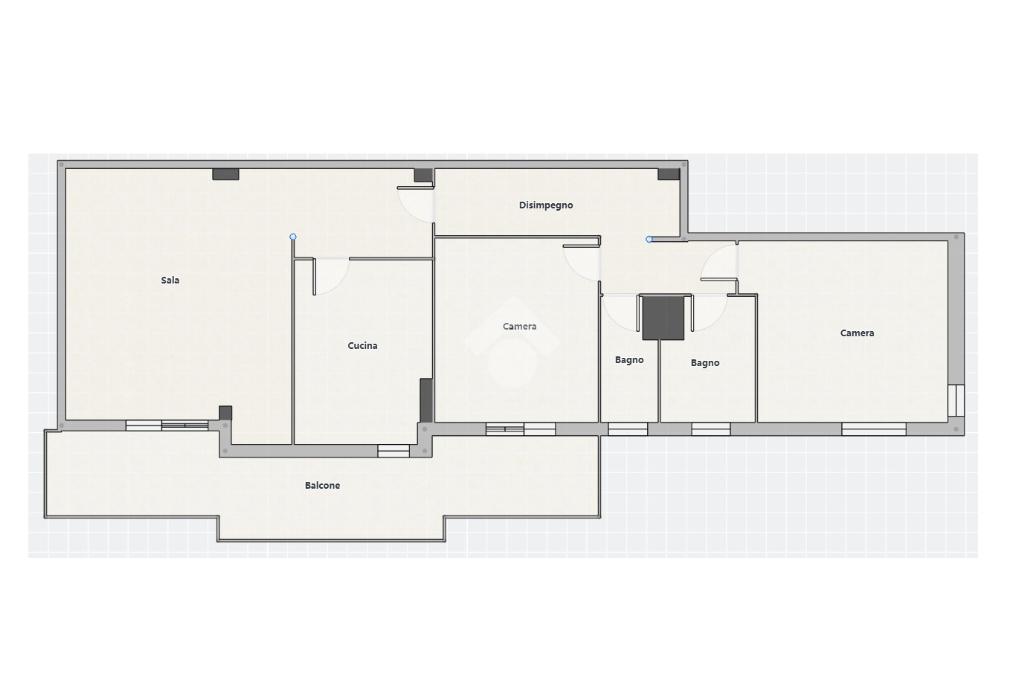
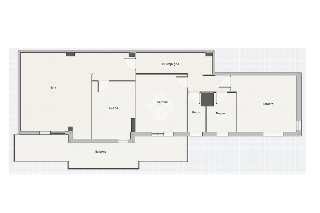
Cassino, Piazza Restagno.

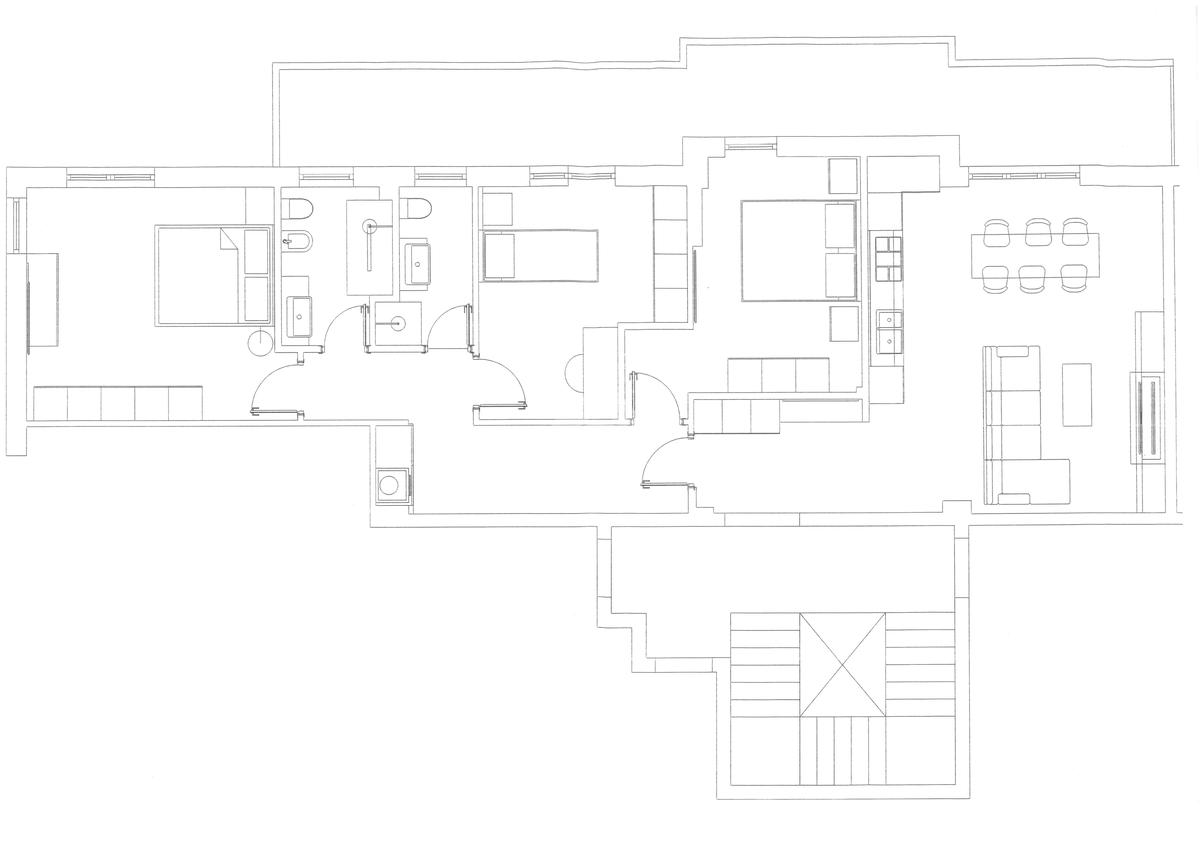
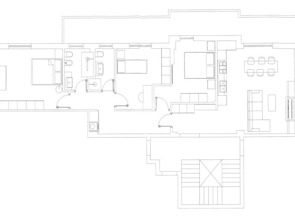
In contesto residenziale, nel centro di Cassino, proponiamo in esclusiva la vendita di un appartamento posto al quarto piano in un fabbricato signorile dotato di ascensore. Attualmente composto da ingresso, ampio salone, cucina abitabile, due camere, due bagni, ripostiglio, terrazzino e annessa cantina al quinto piano. Considerando le ampie dimensioni dell'appartamento, si può realizzare anche la terza camera da letto come riportato nella planimetria allegata. Possibilità di ristrutturare l'intero appartamento avvelendosi di una ditta edile locale e refenziata al prezzo di 66.500 con materiali e rifiniture indicate nel capitolato lavori disponibile in agenzia.

Mostra tutto

Nelle vicinanze

Trasporto pubblico Trasporto pubblico
Cassino
Cassino
1,2 Km
Cassino, Via Garigliano
Cassino, Via Garigliano
880 m
Cassino
Cassino
1,1 Km
Ricariche auto elettriche Ricariche auto elettriche
EnelX EVA+ Conad CC Gli Archi Cassino
830 m
EnelX EVA+ Cassino
920 m
Scuole Scuole
Scuola Primaria "E. Mattei"
160 m
Università degli Studi di Cassino - Facoltà di Lettere e Filosofia
180 m
I.P.S.I.A. "Righi"
260 m
Scuola Media Conte
490 m
Università degli Studi di Cassino - Polo didattico
490 m
Farmacia Farmacia
Sanipharma
550 m
Farmacia Comunale San Bartolomeo
1,7 Km
Farmacia
1,8 Km
Parafarmacia Conad
2,8 Km
Ospedali Ospedali
Casa di Cura Sant'Anna
230 m
Ospedale "Santa Scolastica"
1,4 Km
Supermercati Supermercati
Gecop
870 m
Lidl
1,5 Km
EUROSPIN
1,6 Km
Conad
2,8 Km
Negozi Negozi
Pane,Pizza,Dolci
560 m
Alimentari
740 m
Gusto Ciociaro
2,1 Km
Bar Bar
Bar Grimaldi
2,2 Km
Ristoranti Ristoranti
Pizza e Babbà
450 m
Pizzeria da Antonio
480 m
The Food's Brothers
610 m
Giallo limone
880 m
Ristorante Pizzeria da Francesco
1,3 Km
Mostra tutto

Caratteristiche

Rif.:
60842599
Piano:
4 di 4 con ascensore (ultimo Piano)
Balconi:
1
Camere da letto:
2
Arredamento:
Assente
Condizionamento:
Autonomo
Mostra tutto
Prezzo Prezzo
€ 129.000
Rata mutuo Rata mutuo
€ 595 / mese
Spese annue Spese annue
€ 600
Proponi il tuo prezzoProponi il tuo prezzo

Classe Energetica

E
E
E
E
E
E
E
E
E
EP globale non rinnovabile:
112.00 kW h/m² anno
Anno di costruzione:
1972
Riscaldamento:
Autonomo
Tipo impianto:
A radiatori
Tipo alimentazione:
Metano

Ti interessa visionare l'immobile?

Fissa un appuntamento  Fissa un appuntamento

Richiedi informazioni

* Questi campi sono obbligatori

Calcola il tuo mutuo

Semplice e senza impegno
Anticipo

( % )
Mutuo

( % )

pochi semplici passi

inserisci i tuoi dati
Questionario completato
Grazie per aver richiesto un appuntamento senza impegno con un nostro Consulente del Credito e Assicurativo.

Hai inserito correttamente tutti i dati necessari e a breve riceverai una e-mail con un link da convalidare per inviare i tuoi dati.
Affiliato
Real Estate Srl
Via E. De Nicola, 155 03043 Cassino (FR)

Il nostro staff


  • Matteo Martucci
    Collaboratore

  • Vincenzo Valente
    Affiliato

  • Giuseppina Pacitti
    Coordinatrice

  • Marica Saulle
    Collaboratrice

  • Virginia Attianese
    Collaboratrice

  • Luca Belardino Valente
    Collaboratore
Via E. De Nicola, 155 03043 Cassino (FR)
Zona: Cassino
Mostra su mappa
Orari: siamo aperti dal lunedì al sabato dalle ore 9:00 alle 13:00 e dalle 15:30 alle 20:00; sabato pomeriggio su appuntamento.
Affiliato
Real Estate Srl
Via E. De Nicola, 155 03043 Cassino (FR)

2025 Tecnocasa Franchising S.p.A. - P. IVA 08365160152 - Via Monte Bianco 60/A 20089 Rozzano (MI). Ogni agenzia ha un proprio titolare ed è autonoma. Privacy policy | Policy utilizzo | Cookie policy