Casa indipendente in vendita

Cassino, Via Capo d'Acqua
€ 139.000
4 locali 4 locali
145 Mq 145 Mq
2 bagni 2 bagni

Casa indipendente in vendita

Cassino, Via Capo d'Acqua

Descrizione annuncio

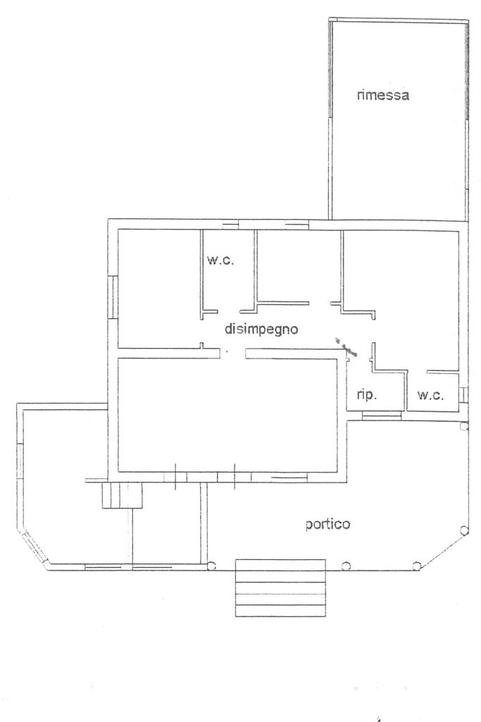
In zona Capo d'Acqua si propone in vendita una casa indipendente di circa 145 mq, ideale per chi cerca spazio e comfort.

L'immobile, costruito negli anni 90, si sviluppa interamente al piano terra e offre un ampio giardino privato, perfetto per momenti di relax all'aperto. La casa dispone di quattro locali principali, tra cui tre camere da letto spaziose e due bagni funzionali. Un balcone aggiunge un tocco di luminosità e aria fresca agli ambienti interni. Completano la proprietà due ulteriori camere, che possono essere adibite a studio o sala hobby, a seconda delle esigenze. Per chi possiede un'auto, sono disponibili un box e posti auto esterni. Questa soluzione abitativa rappresenta un'opportunità per chi desidera vivere in un contesto tranquillo, senza rinunciare alla comodità di avere tutti i servizi a pochi passi.

Mostra tutto

Nelle vicinanze

Farmacia Farmacia
Farmacia Comunale San Bartolomeo
2,3 Km
Ospedali Ospedali
Ospedale "Santa Scolastica"
2,1 Km
Supermercati Supermercati
Lidl
2,8 Km
EUROSPIN
2,9 Km
Mostra tutto

Caratteristiche

Rif.:
61053779
Piano:
1 di 1 (Piano terra con giardino)
Box:
1
Posti auto:
1
Balconi:
1
Camere da letto:
3
Mostra tutto
Prezzo Prezzo
€ 139.000
Rata mutuo Rata mutuo
€ 656 / mese
Spese annue Spese annue
€ 1
Proponi il tuo prezzoProponi il tuo prezzo

Classe Energetica

G
G
G
G
G
G
G
G
G
EP globale non rinnovabile:
1.00 kW h/m² anno
EP globale rinnovabile:
1.00 kW h/m² anno
EP invernale del fabbricato:
EP estiva del fabbricato:
Anno di costruzione:
1990
Riscaldamento:
Autonomo
Tipo impianto:
A radiatori
Tipo alimentazione:
Metano

Ti interessa visionare l'immobile?

Fissa un appuntamento  Fissa un appuntamento

Richiedi informazioni

Clicca su Leggi per aprire l'informativa
* Questi campi sono obbligatori

Calcola il tuo mutuo

Semplice e senza impegno
Anticipo

( % )
Mutuo

( % )

pochi semplici passi

inserisci i tuoi dati
Questionario completato
Grazie per aver richiesto un appuntamento senza impegno con un nostro Consulente del Credito e Assicurativo.

Hai inserito correttamente tutti i dati necessari e a breve riceverai una e-mail con un link da convalidare per inviare i tuoi dati.
Affiliato
Real Estate Srl
Via E. De Nicola, 155 03043 Cassino (FR)

Il nostro staff


  • Matteo Martucci
    Collaboratore

  • Vincenzo Valente
    Affiliato

  • Giuseppina Pacitti
    Coordinatrice

  • Marica Saulle
    Collaboratrice

  • Luca Belardino Valente
    Collaboratore
Via E. De Nicola, 155 03043 Cassino (FR)
Zona: Cassino
Mostra su mappa
Orari: siamo aperti dal lunedì al sabato dalle ore 9:00 alle 13:00 e dalle 15:30 alle 20:00; sabato pomeriggio su appuntamento.
Affiliato
Real Estate Srl
Via E. De Nicola, 155 03043 Cassino (FR)

2025 Tecnocasa Franchising S.p.A. - P. IVA 08365160152 - Via Monte Bianco 60/A 20089 Rozzano (MI). Ogni agenzia ha un proprio titolare ed è autonoma. Privacy policy | Policy utilizzo | Cookie policy